克里斯蒂安·布朗卡特曾说:
“品质铭刻在时间之中,从而让物以一种超越自身的完美存在得更久。”

本案以东方的理念进行当代演绎,抒写【新亚洲】的现代格调,将喧嚣褪去,让所有感官在静谧中自由舒缓,为空间语言注入故事情节,编织奇幻的梦境置地,筑造一个干净而空灵的空间,表达对家的热爱与艺术的执着。
人物画像

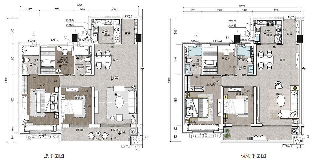
平面布局

空间展示

步入玄关,映入眼球的是精致的《爱菊》雕塑,运用菊花元素,花朵所处雕塑最上方,更具有视觉冲击力,同时也避免了面部五官与菊花同样精致导致主次不明,将花盖住面部,人体部分只用简洁的线条勾勒,与精致雕琢的菊花形成强烈的对比。

客厅Ortiz Milano品牌的沙发利用建筑的分层设计元素,宛如城墙上的砖块经过独特的设计展现出来的别具一格的艺术品,抱枕没有过多的花纹修饰,以色块作为分割,加上白色的天然大理石,视觉上干净利落。

餐厅台面大理石与餐具的金属与吊灯水晶之间的碰撞与融合,加上独特的水晶酒杯,运用古代的茶盏元素进行现代的设计,散出浓烈的艺术文化气息,墙面的落地镜子反射,与玄关边几组合借景,别有一番特色。

主卧首先映入眼帘的是一个高级橙色的床头背景,让人眼前一亮,此外,设计了通透式衣帽间与寝区功能分区,具有私密性又不减空间感,所谓麻雀虽小五脏俱全。

平静而舒适的生活方式表达设计内在的灵魂,斑驳的光影随时间不尽流动,时而踏在软软的地毯上,时而蜷缩于温暖的飘窗沙发中,一杯暖茶,一本书籍,生活就这样慢慢地度过。

父母房设计以米白色为大基调,灰色为辅,整体空间简单、素雅、年轻化,边柜上一组具有意境的绿植呼应,使整个空间充满生机,窗帘细节设计师用了黑色皮革与金线设计的绑带也是别具心裁。

时间沉淀艺术的品质,经典元素与多元文化融合其中,人文美学亦作空间内饰,生活的仪式感一步一步地落于其间。

男孩房设计了《击剑》的大儿童主题,墙面的层架与灯带的结合,打破了墙面的沉闷,一幅击剑的艺术装置画点亮了整个空间的主题。
渭南,一个美丽有底蕴的城市,设计师通过独特的语境和氛围给予空间一种富有情感和人文关怀的家的感觉。
项目地点:陕西省渭南市
开发商:碧桂园集团
设计单位:广东匠著装饰设计工程有限公司
设计团队:陈文绮.李靖.游继强