宁波慈溪·泊蔚里,继天誉华府、四季·珑玥华府之后,进入慈溪城区的又一诚意之作。项目对标的是英国伦敦的一个同名项目“The Broadway ”(柏蔚),倡导的是和伦敦柏蔚同等的都会生活方式和理念。


海纳百川,有容乃大
“春涨半篙波潋滟,晓山一带色微茫 。”
宁波,地处东南沿海,临水而建,依水而生,
为“海上丝绸之路”的起点之一。
涛声楼影中,见证着宁波这座江南水乡的传奇;
传统与现代的交融,这是一片沉淀着历史,
亦洋溢着活力的沃土。运用现代视角演绎传统元素,
传递江南都市奢华且不张扬的灵秀与时尚气息。
通过拿捏居者的内心所感, 以传递心灵隐居、恣意洒脱的生活理念。

现代都市住宅空间,承载生活品质的同时,也安放着参与者对艺术人文的小确幸,生活、自然、人文、品味、气质,在与空间的交流中,空间只反应你所想见,那些最终出现在空间里的物件、色彩、光影,是空间对你的回应,也是参与者自身的写照。生活对你的态度取决于你对待生活的态度,我们与空间亦如此。
家承载着人们丰盈的美好想象,是自然与生活串联起的每幕场景与每份情感的发生地,是给予着居住者安适感、温度与爱的一座自由的私岛,家宅在漫长的岁月中是永恒、纯粹且有力的一个存在。





窗外繁华林立,屋内宁静沉敛,温文儒雅。空间开阔明亮,守正出奇,既有和谐的形制色彩,又有独具意境的艺术品活跃其中。空间细腻柔雅,远近皆景,气质灵动鲜活,似在呢喃低语。





餐厅延续了空间一贯的清雅色调,干净明快。厨房与餐厅可融合可分隔,满足了喜欢为家人制作美食的主人与家人的沟通和互动。朝迎曦光,暮会烟霞,四时三餐,家人们可以在这里尽情享受料理与就餐的亲昵时光。


主卧极简的配色,却在各种线条形状的搭配之下,显得层次丰富,温和清静,质感十足。安静休闲的格局,让人舒适放松,卸下所有防备与疲惫,静享惬意时光。
在一个地上洒满阳光的慵懒午后,放空思想,窝在柔软舒适的沙发里,用最舒服的姿势,随意翻开一本书,品上一杯红酒,让时间就这样安静地随着指尖轻轻地溜走。


基于物质享受、精神满足、情感共鸣等多维度诉求,主卧配备独立的衣帽间、卫生间、书房,私属空间需求得以实现。
书房空间大气沉稳、冷静克制之余,融入了文化的包容与创造,书桌造型兼具精雅与浑厚,时尚简约之中不乏考究匠心。

满室芬芳的主卫,格调清新,简洁洗练。自然的木色与冷静的石材与黑钢,巧妙串联,干净雅致。

针对女儿自身的成长,融入了更多的少女情绪与思考,在冷静的木色中加入了皮革与黑钢。中式趣味活泼之余,更添一番明丽质感。多彩的饰品,就像时间温柔地撞击成的漩涡,流泻着俏皮的灵动之姿。


整个空间设计在城市文明交融的背景下展开,开阖纵横的空间格局、传统与现代的碰撞、东方与西方的对话,正体现了空间在设计上包容与开放的态度,希冀用艺术时尚的设计来实现空间的还原与升华。
家是与人共生共长的空间,是盛载生活的容器,它必然离不开人与生活的鲜活烙印。在文明融合的审美意旨之外,打造家、人、生活之间的和谐与包容,让一切都自然地发生,最好地安放,才是设计的魅力与价值所在。

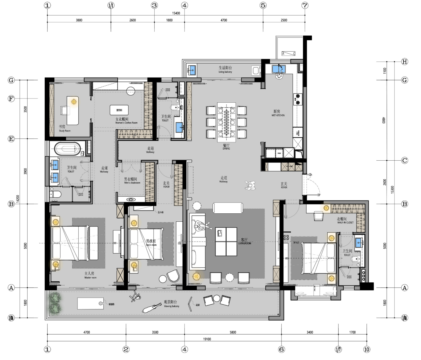
平面图
END
项目名称:泊蔚里
项目地点:宁波慈溪市新城大道和规划明州路交界处
开发商:慈溪市复桂置业有限公司
设计团队:

关于我们
匠著设计为碧桂园核心联盟企业,定位为“创意设计与智造”的综合型公司,致力于为客户提供具有竞争力的产品解决方案,从室内设计研发、绿建材料选型、供应链管理、软装陈设、沙盘模型制作、数字多媒体展示制作、广告视觉包装、定制化施工的一体化服务。
联系我们
商务合作
0757-2666 6852/2666-6672
媒体合作:181271567@qq.com
人才专线:13336400725/电子邮箱:181271567@qq.com
地址:广东省佛山市顺德区北滘镇顺德碧桂园正苑匠著公司|邮编:528311
商务合作、业务洽谈,更多合作请点击 ↓↓
